祝!2026年春『拾いの匠』リニューアル!新機能と精度アップのポイントを先取り解説
AI音痴ライターのなまず美紀(みきてぃ)です。
2026年もどうぞよろしくお願いいたします。
さて、AIの最新事情を求めてシステムズナカシマさんに突撃するシリーズ。
2026年最初となる今回は「今春『拾いの匠』がリニューアル!」という情報を入手。
開発担当者に直撃インタビューし、公開前の貴重な情報を仕入れてきました!
おさらい:『拾いの匠』って何だっけ?
『拾いの匠』は、図面から必要な部材や数量を自動で拾い上げてくれるツールでしたよね。
システムズナカシマが得意とする「図面 × AI × 現場DX」の技術をぎゅっと詰め込んだ製品で、展示会でもお馴染みの存在です。
▶AI×拾いはこちら
このブログでは 2025年5月にバージョンアップをご紹介しました。
今回のリニューアルの狙いは、「電気設備の拾い作業で、AIの図面認識精度をさらに高めること」。
そこに向けての”3つの進化”を、みきてぃ目線でやさしく解説します!
進化①ベクトル解析で精度アップ!
1つ目の進化は、「ベクトル解析」ができるようになったこと。
もちろん、みきてぃは「ベクトル解析ってなに?」から始まります…。
開発担当者によると、「CADから作られた図面の中にある“線データ”を、そのまま使えるようになった」というイメージだそうです。
たとえば、これまでは、AIは下記のようなPDFの図面を“画像”として見ていました。そして、「これは線かな?文字かな?」と推測しながら電気機器と配線を判断していました。
ところが、ベクトル解析ができるようになったことで、図面を範囲選択すると、電気機器は赤、配線は紫、といった形で自動的に一瞬で色分けされるようになりました。
この、機器と配線をあらかじめ振り分けておく「前処理」によって、その後のAIの画像認識の精度が上がります。さらに、線としての情報を持ったまま扱えるので、「配線の長さを自動で集計する」といったことまでできるようになるのです。
進化②類似の表を自動検索し、文字を認識して集計まで
2つ目は、「表と文字を自動で読み取って、数まで出してくれる機能」です。
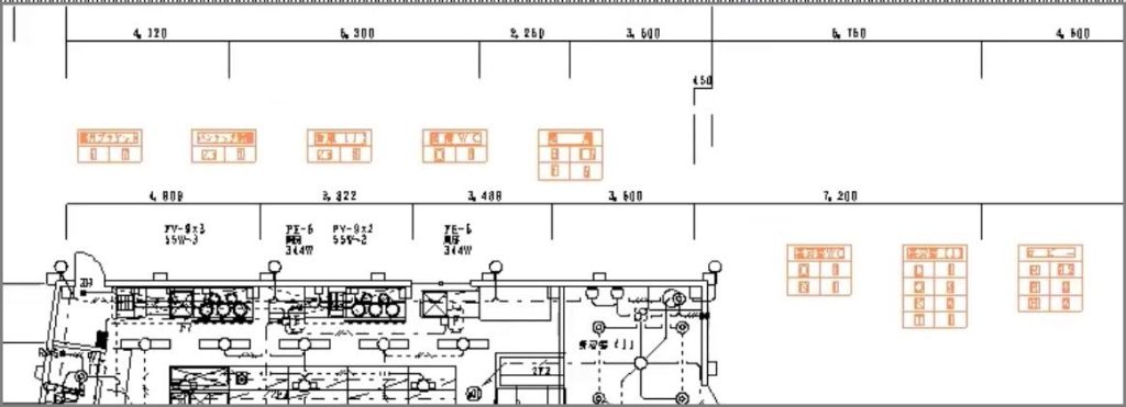
図面では、外側に下記のような「器具表(器具名、対応するアルファベット、個数)」が添えられているのが一般的です。
これまでは、図面に散在する器具表を、人が目で探して読み、器具の個数を手動で集計する必要がありました。
リニューアル版『拾いの匠』では、図面の中のひとつの表を選ぶと(選んだ表がブルーになりました)
AIが類似の表をすべて自動で見つけてくれます(認識された表がすべてオレンジになりました)。
さらに、その表の中に書かれている文字や数字も読み取って、図面の中にどの器具が何個あるか、集計してくれるようになりました。
(下図:器具名、アルファベット、個数をそれぞれ認識して、集計してくれます)
つまり、「この図面に出てくる照明器具のうち、屋外ブラケットを表す「i」という記号の器具は全部で7個必要です」といった情報を、自動で教えてくれるということですね!
そこまで拾ってくれるとは、匠の成長がすごすぎる…!
進化③roboflowとの連携で生まれる2つのメリット
今回のリニューアルでも注目すべきが、この「roboflowとの連携」です。
特に大きいのが、次の2つのメリットです。
▶roboflowはこちら
メリット1:お客様自身が作った“自社専用モデル”をCAD上で使えるように
これまで拾いの匠で使えるAIモデルは、システムズナカシマが提供するものに限られていました。
しかし、実際の図面は会社ごとに書き方や記号のクセが異なります。そのため、「うちの図面に合ったモデルが欲しい」という要望もありました。
今回のアップデートで、roboflow上でお客様自身が作成したAIモデルを、そのまま拾いの匠のCAD上で利用できるようになります。
つまり、自社の図面に合わせて育てた“専用モデル”を現場で直接使えるようになり、認識精度はこれまで以上に高く、実務にフィットしたものになります。
メリット2:誤りを学習し、AIモデルが“成長していく”
roboflow連携のもうひとつの強みは、AIモデルが「使うほど賢くなる」仕組みができる点です。
拾いの匠で図面を読み込んだとき、もしAIが誤認識をしたら、CAD上でその場で「間違い」認定をします(オレンジの箇所は誤認識)。
その修正データをroboflowに送り返し、再学習させることで、次回以降はその誤りが起きにくくなります。
つまり、図面をAIで認識→ 誤りがあればCAD上で修正→ 修正データをroboflowへ送信→ roboflowが再学習→モデルが賢くなる→そのモデルをまたCADで使える、ということ。
”AI育成サイクル”が構築されたということですね!
以上が、リニューアル版『拾いの匠』の進化の概要です。
開発者の皆さんに拍手!
今年の春にリリース予定ですので、どうぞお楽しみに。
以上、“みきてぃでもなんとかわかる”最新AIニュースでした。
AI活用に関するご相談・お問い合わせは、システムズナカシマまでお気軽にどうぞ。
–おすすめ記事–
画像認識AI開発プラットフォーム『roboflow』の日本語解説 YouTubeスタート!
不動産業界に革命を起こす!?AIプラットフォーム『qbiq』










